In vendita €407.000 - Appartamenti 2 camere
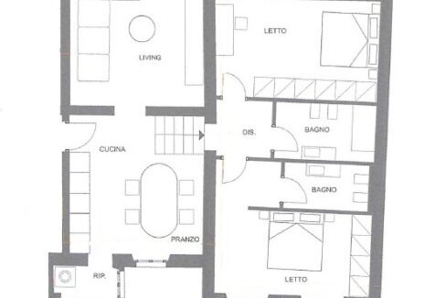
In palazzetto con ascensore a due passi dalla Ghirlandina, appartamento al quarto piano, nuovo, completamente ristrutturato: ingresso, soggiorno, cucina con ripostiglio/lavanderia, due matrimoniali, cabina armadi e due bagni. Isolamento acustico, domotica, riscaldamento autonomo a pavimento, impianto di condizionamento con pompa di calore, zanzariere, addolcitore. Contesto di poche unità abitative, oggetto di totale recupero. A.p.e. in corso di definizione. Pronta consegna.
































