In vendita - Appartamenti 2 camere, Immobili di prestigio
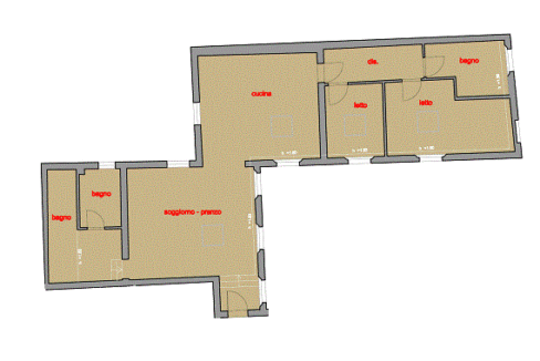
Da restauro conservativo di prestigioso palazzo d’epoca, proponiamo ampia mansarda con caratteristica disposizione interna, dotata di finestre, lucernai ed altezze completamente fruibili: ingresso su soggiorno, cucina abitabile, ampio disimpegno per armadiature, due camere e due bagni finestrati. Possibilità di acquisto cantina con comodo doppio accesso dal cortile interno e dal vano scala. A due passi, possibilità di acquisto garage per auto media. impianti nuovi, già installati e certificati: riscaldamento autonomo a pavimento, predisposizione condizionamento e allarme, scuretti, infissi laccati bianco. finiture interne personalizzabili. A.p.e. in corso di definizione. INFORMAZIONI C/O NS. UFFICIO.












