In vendita €220.000 - Lotti
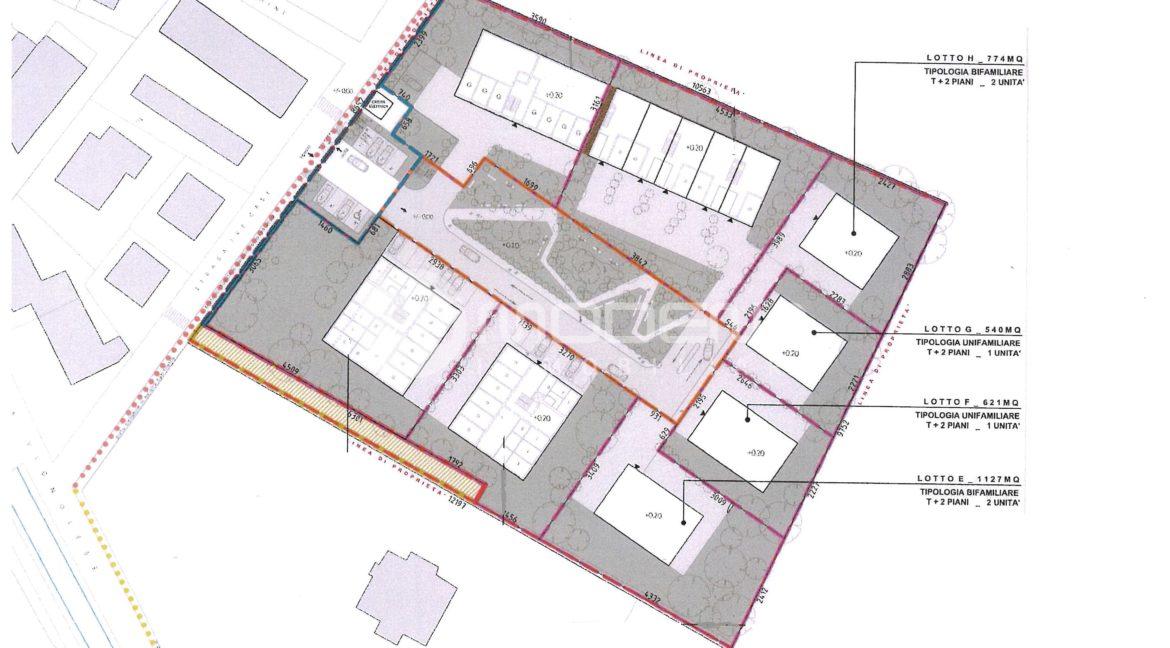
4 lotti di circa 650 mq cadauno con 350 mq di superficie utile, con possibilità edificatoria di villa singola o bifamiliare. A.p.e. in corso di definizione. Vendita del singolo lotto urbanizzato. DA € 220.000 Possibilità del costruito.
Additional Details
- :






