In vendita €270.000 - Appartamenti 1 camera
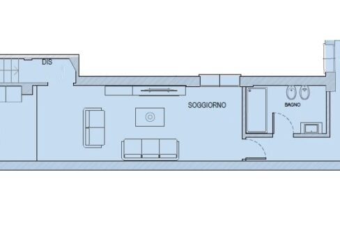
Zona Canalchiaro, proponiamo ampio bilocale con ingresso indipendente, oggetto di totale ristrutturazione in fase di ultimazione. L’ingresso è al piano terra e da qui, tramite scala interna, l’appartamento si sviluppa su di un unico livello: ampio soggiorno, cucina/pranzo, camera matrimoniale e bagno. Riscaldamento autonomo, aria condizionata. Consegna a breve. A.p.e. in corso di definizione.








