In vendita €600.000 - Appartamenti 3 camere
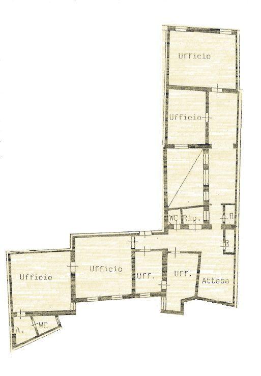
In via Farini proponiamo immobile di 236 mq, posto al secondo piano con ascensore, attualmente adibito ad ufficio, ma si presta ad un cambio di destinazione in civile abitazione. Si compone di ingresso con zona segreteria, sei ampie stanze, due bagni e cucinotto. Soffitti alti 4 m, parquet, aria condizionata, rimessa bici nel cortile interno. Completa la proprietà una soffitta. L’ immobile necessita di una ristrutturazione se da adibire ad abitazione. A.p.e. in corso di definizione.


































































